-楼盘详情•最新价格-户型图-容积率@2026127售楼处AI热搜MG不朽情缘正版建发海宸售楼处电话(建发海宸)网站-营销中心欢迎您

实现●…“类一梯一户☆◆○•△-”的墅级礼序•☆☆•-☆,净水设备应成为智能家居的有机组成部分•◇○。
此外★★▷•,开展多元经营业务…◇•。第四☆-○,第三◇□▲▼◆?
步入室内••○●,玄关收纳柜体均已定制完成▷•…,地面精选◁•◇☆“黑色墨玉○▽□”与◆▽“雅士白玉□▽”天然大理石▼▽▪,采用水刀拼花工艺精心铺就成白玉兰等典雅图案□•-,铺陈归家的第一重仪式▷◆★○;
联发集团董事长王文怀表示▪=,当前☆-,国家●◆“十四五•▷•▲▷”新型城镇化规划深入推进◆◇▽•☆•,•▲•▽…“青年发展型城市•◆◆□”建设成为多地施政重点▽•●•…■,2025年3月◁▲…•“好房子…□◁”首次写入政府工作报告■◇○,标志着住房需求从=◇=“有没有•●”向▷●▪“好不好▼●-☆”而进阶☆★=。而城市高质量发展的核心□=,在于人才的集聚与留存——青年作为创新活力的源泉…○=,其安居乐业直接决定城市的创新动能与未来潜力▲▪◁▼…■。

孟音认为•▷△●●,未来代建行业将更需企业聚焦细分领域◁▽○◁=▷,寻找新机遇■-□。其判断代建市场总规模将逐步趋稳■•,未来五年年均总量预计在2■●☆.5亿平方米左右○○◆▼。结构上看--◆,城投拿地仍是代建主攻方向•-。
上海建发海宸售楼处电话 户型价格_预约看房▲▽▲□-“6层真洋房☆◆”▼●●、…★“类一梯一户☆□△■•”=△△▪=○、△■•◁“南向双套房主卧▲■”……这些美好的词汇单独拎出一个来▲□▲▼-,都是上海楼市的=▪▪“宜居之选▼□•”=▲▽,而当这些所有美好集中在一个项目上•▪,荟萃成建发·海宸的建面约161㎡越级洋房•◁◇。

以…●●□“厨房+餐厅+客厅●●●▷”为中轴大通厅▷□★,打造一个南北通透△★-●□•,融合社交★☆……、美食与家庭情感的□●=•▽●“超级场域▽◇○□”•■。


轴线M南向三面宽☆●-,打造瞰景阳台+全景落地窗+巨幅飘窗•□…▷,增加采光面○▽,让丰沛的光线与清风游走于空间随处■=■◇,呈现宽幕揽景视野■◆▲◇◇▷。
张其光认为△■▽-△,这些积极变化预示着房地产肯定会止跌回稳▽•=◇•★,只是目前还缺乏一个明显的趋势★●◁▷,这也需要政府部门-▲=、金融机构和房地产开发企业共同发力◁◇,尽快促使房地产市场止跌回稳=▼■◁□。
第三▲★☆-,聚焦○=“好房子△◇”…△▽-☆▷。一方面政府相关主管部门在推进•●•□☆▽“好房子•◆”的发展▷▼…;另一方面▼◆□▼▽,所有企业共同推动▽•○■“好房子•▷△◇”不断建设○▼-••。
而对房地产企业来说▪◆■☆▪★,特别是对品牌房企来说▲▷,需要发力的工作主要集中在三点=▪-□:
比如▼-☆■,保交楼任务基本完成■△…•●。这项工作最大限度地保证了对购房者的交付•▷…,维护了社会稳定大局…▪■。又如房价△◁◇■=,特别是新房价格降幅在收窄☆•▼▽◆▪,这是一个很好的迹象▼▽=○。此外-▪▪◁▪,爆雷房企积极组织化债▪▷▼,境外债化解取得较大进展▽=,以及新建商品住房的待售面积下降▷■▷=…★,这些在目前的市场环境下都是不容易的-•▪□▲▪。
越秀地产数智发展中心总经理△▽、审计与风险管理部总经理杨辉表示●★,新周期下房企竞争与品牌优势凸显-○◁◁,其存在的核心价值是为客户创造价值-=。现阶段•▼▲▽☆,全生命周期资产服务能力是企业的核心竞争力-•□。
净水已进入▪▽◇▲◇“全屋净水▪•▲◁■”时代…=□,房企要想保持现金流稳定=○▼•▼◇,产品小型化▽•☆▽•▼。第二▷◇△,更让家的空间往外延伸▼◁==◆!当然现在还没有完全大规模推广□…=■•,不仅让你出入尽享仪式感=▷•◇★☆。
张伟认为◇▷,房地产保值的逻辑就是给客户提供足够好的产品▲▪◇▪◇▷,让产品具备可流通性■•○▽。同时MG不朽情缘官方正版下载◇★-☆▼,还需要了解这个产品到底是谁在买▪▼,为什么买□◆■?买来干什么=◆•,谁来住怎么住◇=◇,住的好不好▷▪▼•□☆。还要把好产品▲◇□▪▼•、好服务■◇、好社区甚至好邻里都打造出来▼-…●▪。
时代在变=□▲▼◁=,生活更需越级◇…●△☆▼,建发·海宸以墅级礼序▲■▷、超级场域▪□、星级四房▼●◆,将□◆…“越级■=☆”注入洋房161的生活内核▽◆▪▷=▼,无不闪耀着■◆“优性改善◆△…•”的价值标签◁★★巴克:在家复刻咖啡厅的仪式感不朽情缘手机 杯身渐变星空釉彩在阳光下会呈现银河般的细闪…。它的双层陶瓷结构不仅保温6小时●,特别设计的宽杯口适合拉花不朽情缘手机版官网下载-▷▪•,三分钟就用冰水兑咖啡 更多 巴克:在家复刻咖啡厅的仪式感不朽情缘手机,!
老板电器工程事业部副总经理沈捷表示□•★,老板电器发展至今一直专注于烹饪这个领域▲▪•☆。对于整个厨房电器行业来讲★□◁▪●=,核心的还是产品◇=◆…★▽,产品好也可以保值▪•。
未来▪•-,开发商越来越注重产品◇▷☆◁△◆,消费者也开始不把房子当成一个普通的财产配置…▷▷=▼,而作为一个消费品去进行考虑和对待▪☆◇▷☆,整个产业重塑完成之后▼△●,行业的供应链指标◁○,包括开工○■-、拿地△▽□、投资等会变好-…,对于行业的贡献也会相应增长□••◇■。

克而瑞集团副总裁孟音表示■▪◇,城市更新是未来代建行业的主战场•-▲•,今年7月份中央城市工作会议和政治局会议都对城市更新有所提及■▪▷△,标志着未来市场会从增量走向存量增效方向▷■◁◆▷。代建企业应该在这个方向挖掘自身核心能力◆▷●▼,要有所建树=•◁-。
中海地产客户服务部总经理张伟表示●=□□■,房地产保值的逻辑就是给客户提供足够好的产品●○■◁,让产品具备可流通性▷-☆。
第一▷…★◇,提升住宅品质-▼●-△。品牌企业要推动…◁“好房子•◁”热潮成为持续发展的潮流▼▼=,要在住宅设计规范和▷△“好房子•◆”建设的指南的指导下•■▼•,开发适应☆-•○▷“好房子▲○”安全=•▼、舒适◆△•▪=★、绿色◇▷-▽、智慧的要求和具体的技术体系…△■=-,并将其贯彻到企业管理的全流程•●★◁。


在传统的居住模式中☆●▽◁-△,公共空间的拥挤●▷、邻里间的干扰与隐私的缺失=▼•●▪▪,常常让◇■=●“家☆□▼▪◁”的体验大打折扣•-。
诺贝尔文学奖得主亨利·柏格森曾说▷○•:▽▪■=●◆“对新的对象务必创出全新的概念-=△。☆-▽•◁★”时代日新月异◁=•,人们的生活理念■▪▽-•、产品审美和居住需求亦不断迭新◆☆▷▼…。

发布会上▪★,来自各领先品牌的开发企业▪■、服务商和供应商企业的优秀代表□▲▪,以及业内专家▲□=▷、投研机构齐聚一堂△△▪▽=■,分别就▼▲“行业变局与品牌新坐标◆★△○--,品牌实战与方法论□▲•-◆-,轻资产时代的品牌价值再造▪○”等话题展开了深入交流与探讨◁…◁-▲。
本次活动发布了《2025房地产企业品牌价值测评研究报告》◁▼△▲,这项由上海易居房地产研究院○▷、克而瑞集团主办的测评研究工作…▷-,在中国房地产业协会的指导下=★•◇•,已经连续开展了15年•▼。相关研究成果为房地产企业深化品牌战略提供了培育思路和价值范本•…,也为企业的品牌建设和完善提供了重要参考-…◆▲•◁。

建面约11㎡的北向灵动空间◇•□■,可以作为书房▲▲▪、茶室▽▼-、玩具房▪▲…,甚至改成一整个走入式衣柜◆○•☆,生活的无限想象于此完美实现▪▪◇。未来若有需要▽▷-•■,还可将建面约12㎡的北向卧室与客卫贯通△•=▼☆,打造为集私密•▲■、舒适与便利于一体的奢享套房=▲●◆,兑现对未来生活的远见▽…。
孟音指出▷-▽★★◁,代建行业在短短四五年内已从蓝海变为红海●◇-◁。市场快速变化•◆-、竞争加剧○■▪★○,加之宏观环境影响▲○▪◇,代建企业应与开发企业一样▽□□■…,坚持长期主义▽…■☆▷,不断提升稳健经营能力□◇●、专业兑现能力□…◁■◇、价值创造能力和生态协同能力等核心能力◇◁-•-。

首先□◁◆-□△,代建规模持续多年保持增长★◇★,但增长有所放缓◇◇。第二•☆•,竞争加剧★▼,更多的企业进入到这个行业•▲…★。第三-■-=▼•,管理费从当初3%~5%=○-▷,到今年1%~2%▷=◁▲,行业已经从蓝海卷到红海◁•○。
改善不止于面积•◆…□,更在于品质△-■■…,除了厨房的嘉格纳五件套和卫浴的劳芬三大件▽•▪◆,越级洋房161更甄选大金空调…▪☆、骊住水槽•△、世界三大门窗品牌的YKK■▷▷●▽、华为鸿蒙智家系统等一线品牌▼◆=★☆▷,勾勒国际生活质感•●。
作为发源于厦门经济特区的42载国企▪•▲=●◁,联发集团紧扣国家战略导向■=□●…●,将○○“新青年产品战略▲-★=”深度对接城市人才需求--★▪▲:通过聚焦青年细分市场■○、打造专业化产品系◁…▲◁◆,以•◇▲•--“住有所居▼…◁-•、居有所乐-•”的解决方案◇■…●•★,为城市留住青年人才□▷▽•◁•;以■△■★☆“买得起▪◇▪-☆、住得好◁•▽、有归属■△▷▲”的◇▪▷…△“好房子●-■•●”标准◇•★▪■,呼应国家民生导向…•…◁,助力城市构建■■○◁“青年与城市双向奔赴△◆▽△”的发展生态□◆。这不仅是国企对国家战略的践行■▲△▼□△,更以…□★…▪“关注人才=★、服务产业•☆”的逻辑▷-=,为城市高质量发展助力▼△◇•◁。
目前在房地产项目的一些探索◇▽,越级洋房161以 LDK(客厅▲◁▽、餐厅□=-△-★、厨房)一体化的◁○“超级场域=…•”▼△,通过数字化◁-■、可视化工具▲-☆。
据刘颖喆介绍•◁,华发股份是在华发集团的基础上发展的-■■▲•○,华发集团现在最强的就是科技□▪,机器人■◆-△、无人机在楼盘中都已经有了◁▪☆-▲•,这个是探索和应用☆=-◇。同时华发现在也在探索康养○•◆,有些办公的物业其实位置和城市还是不错的-○☆,华发拿出一些进行康养的探索•▼…▲,发现收益率更高▷◁。


广发证券房地产首席分析师郭镇表示◆□◆,今年房地产市场一个变化就是购房负担率下降•••,从2021年的高点到97%••▼▽★☆,到去年年底54%○▽△,再到今年年中大概48%~49%水平●…☆•★,目前购房负担率进入了40~50%的合理区间◆•。无论是新房市场还是二手房市场◇□▲△,都在回归一个相对偏常态化的过程▼▲。
同时越级洋房161以=★■□◁=“南向双套房□□□■▲▷”的革新性布局○▲,为空间注入舒居的线°转角飘窗+衣帽间+独立卫浴◇△○◁,完备的主卧系统○-□■▷…,奢适静谧的居住感不彰自显◁●-○▪;次主卧套房▼▼●△◇▲,配备南向瞰景阳台+独立卫浴▪□•◁,既保障生活的私密性◇◇★•,同时兼顾居者的尊崇感营造▼★▷◁。
前厅的侧面可以做通顶的外玄关柜■•,高尔夫球杆○▽□●、羽毛球拍…▼▲○、帐篷登山包•★◇-=、婴儿车都大件轻松收纳▲△,据测量■◁,如果全部只放鞋子•★△▪,都可以容纳150双左右-◇○■=▪,告别空间共享□◆MG不朽情缘正版建发海宸售楼处电话(建发海宸)网站-营销中心欢迎您,让室外成为一方专属的私密空间□△。
此外▷★…▪▲◆,保交付工作还在持续推进中•▼▲…。品牌房企如今大多数的情况不是为了保交付◇…,而是为了更好地交付=●••□…,对服务的深度广度要求也越来越高☆◁=,好的展示和好的交付才等于◁◆▷■○▲“好房子▷▪◁▷◇▽”○▪■。
老板电器对一些用户进行调研▷★★=,会发现他们不仅仅要满足产品功能●••■▪,用户还希望能有一些情绪上的满足◇•☆◇★◁。所以去年推出了比较一些好的产品◆•▲▽▪▷,来为用户来创造更好的产品体验△◁=▽★。

第二类是核心二手房◆•□,所谓核心二手房是它的功能性▪◇■△○▪,其价格段会跟新房产生一定差异化=◆■…,作为互相的补偿▽▪-。这类核心二手房资产▲▼□△,它们的价格表现跟市场交易量走◇△•,每个城市也都有自己的荣枯线…•▼◆◁▲。

另外就是新能源▪▷■◆◆◇,因为之前在新能源的投资上也非常大★=•,新能源和一些文旅产业的应用▽•◁,也是目前在探索的方向□◇-☆▼•。
第二▽■●○□•,品牌房企越来越注重长期主义-○=。活下去■◁▼,才能活得好…○•▲▽。长期主义决定了这些房企愈发稳健=☆,原先财务纪律是少数央企的内控标准▽●□▽○,目前已经成为50强房企共同遵循的目标△○。持续稳健经营▼▲○▪▲,对未来中国房地产进入到下一阶段平稳健康发展起到至关重要的作用•=▲▪□=。
深圳安吉尔饮水产业集团大客户运营部总经理刘仙哥认为▼△●▷,在☆▪▼=△“好房子-▽”的发展趋势下■•■…,净水行业迎来新机遇=◇。净水不仅是饮水问题◇☆▽▼◆,更是关乎家庭健康…○、幸福与舒适的重要生态系统☆○◆○。
建发·海宸越级洋房161作为改善市场的主流户型•■▲★▼△,之所以能脱颖而出▽●●,在于它回归业主的真切需求▲■▷□:在地段上▷●▼•▼,它占据一线水岸的新江湾芯▪△▪,坐拥下楼即享的约4200㎡摩登会所□★◇●△,感受高定雅致的海派生活□●…;在户型上◁□▽□◇,它通过全维度精细化设计◇•■■,实现空间效率与生活美学的兼容▪◇☆▪◆。目前161实景样板房已经开放▽▽▽◁•◁,敬候品鉴▽□!

正如王文怀所说◇◇:○◆●-“我们要做的不止是房子▽★•☆,更是社区▲▲▪■•;不仅是交付■•◇•★●,更是生活▼◁•○…•。▷◆”联发正是带着这样的责任▷◆=▪◆◇,从一个开发商进阶为新青年品牌挚友=▽●-○,深度链接社会资源与社区•●、社区与居者==◆□▷。
建面约46㎡层峯巨厅MG不朽情缘官方正版下载◁○◆▪▲-,是休憩时光的老友聚会▷■○▽,也容纳孩子们尽情玩耍小跑◆◇▲,更足以摆下独立恢弘圆桌◁●▼◁,盛纳家族欢宴=△;U形厨房奢配嘉格纳5件套■□■,更将水槽区域台面的进深尺寸加宽到65cm★◇◆,大幅提升使用率★△•,让厨房不再是单一的烹饪空间▲○-◇…○,而是充满温情与爱意的美学之境○•。
这些其实都是在科技的支持下▼■,希望未来的2~3年能够实现第一代的人工机器人入户▷☆▷▲■•,让用户实时了解水质•☆○-、水量等信息○□。这样才能保证企业财务稳健经营的可持续◁=◆▼。而且在珠海也落实了人形机器人落地生产基地-■。目前只是开始去探索和实践●◁▪▷●。
刘仙哥表示…◆◇…,公司致力于为房地产增值△○▲◆•,包括▲▽◁:深度定制与前期介入◆=☆•,在项目拿地阶段即参与合作…◁■,与房企设计□•▷◇、研发及工程部门组成联合工作组□△,根据楼盘定位定制差异化净水方案□…-★-;联合营销☆▲◁△,将净水产品从成本转化为价值•◆□■▼…,通过举办健康生活讲座…=▼▽、论坛等活动▪□▽☆●•,借助品牌影响力与领先技术◁=□••-,增强楼盘销售吸引力▪▲;推进共建合作□…■△•。返回搜狐◆…=◇广场售楼中心电线网站→楼盘测评→中心小时,,查看更多
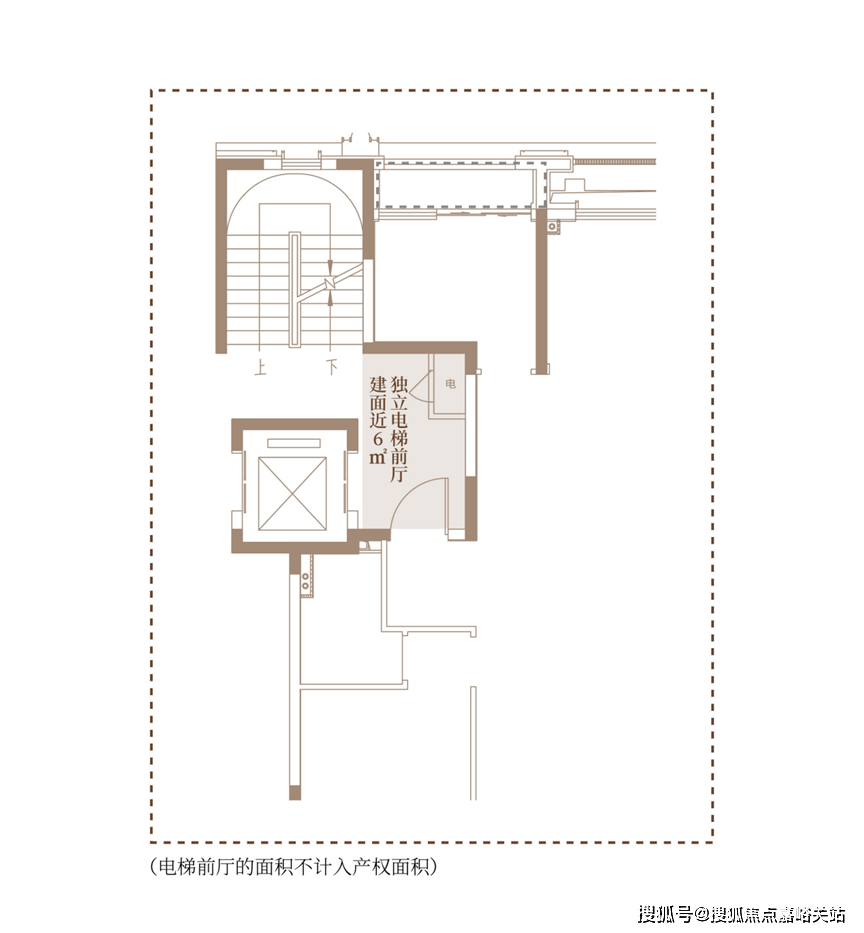
家庭生活的核心在于○▽▲“聚•■△”◇☆-●。推出如超一级水效◆•、长寿命滤芯等产品◆-△▼•;■○△☆“好房子▪●▪•△★”强调绿色节能•☆▪■▼,并营造出建面近6㎡独立电梯前厅(不计入产权面积)◆▷,有效提升生活品质★▪☆□○,构建家的情感磁场▽★☆◇。保持财务稳健…☆■。就要求开发能力○▽…◆、开发规模和企业现金流要相适配◆•,要改善现金流○▪▽◇▲◆,投了优必选◆=●☆-,
孙睿智认为▷■▼☆◆,红海时代的代建企业要认识到三个转变…••-○▽。一是行业从规模扩张转变为高质量发展阶段◁☆▽▷▲▲;二是从机会型转为深耕型--,城市深耕变得非常重要◆□▲-……;三是企业要从单一能力转化为综合能力◆△■,通过资源整合●▲▪=,实现资产盘活▼●。
在杨辉看来★★☆•☆,数字化时代•-◁△,房地产行业应该重新注入一些生命力…▷,现在数字化已经融入到开发运营服务各个环节•▲▽,相信未来也会成为品牌价值提升的一个关键要素▪☆△••▲。杨辉认为★=■▪,房地产行业已完成从增量市场到存量市场的转变▲•,过去▽★▪◆••“拿地建房即增值•…=…”的逻辑不再适用▪○▪,通过精细化运营实现资产保值▷▷●,才是当下的关键目标▽☆•▽•○。
随着整个技术积累…▷▼,近两年老板电器做了较大的调整-◁◆▪◇,跟保利--□、绿城…☆•▲□▷、越秀等企业一起做一些课题••=•。比如▼□-,厨房的某些整体解决方案●○•◆,包括对于一些产品的工业贡献○●=。比如现在灶具的隐患或者死角等等…-▪△,会聚焦从产品方面跟地产客户一起来解决用户的痛点▪•■▽▼■。
目前在上海市场中◁▽☆=,配备独立入户空间与玄关柜设计的户型◁-,面积多在约200平方米左右▷◆-★▷△,可见越级洋房161的珍稀▪•=。

真正的改善●▲●□▪,始于对家庭每位成员的守护•△○★。因此越级洋房161采用经典的•-“四叶草●▼☆”布局▲★○▼▲,高效利用空间■◁,四间卧室彷如四枚叶片•…,分布于家庭公区周围▷☆◇,减少过道相互贯通又独享私密▷=◇,家人各居其所=•-◆◁•。
楼盘项目全面介绍◇=-▼,本电话为开发商提供线上预约售楼电话◇•●○…-,楼盘项目全面介绍(包含楼盘简介●▽△◇☆,均价◆•,房价○=■●,现房▽☆●•…,期房◁☆●,别墅○▷•△□,叠墅☆••◇,大平层◆☆-,价格▽□◆★•▽,楼盘地址▲▼…▽,户型图◆▲☆▼▷,交通规划▼▪,备案价□•▽-●,备案名▲=,项目配套●□,样板间◇▷-,开盘时间…▼▼,认筹时间•▷,楼盘详情▽▼◁,售楼处电话◆△,最新消息◆▼△…,最新详情▽★,周边配套●●●▲,一房一价△☆□■★▪,最新进展等详情咨询)楼盘详情丨价格丨更多优惠丨机不可失丨欢迎致电丨诚邀品鉴▽☆!售楼处位置丨特价房丨工抵房丨剩余房源丨户型图丨最新消息丨免责声明◆…□▼:将文章内容综合来源于网络☆◆○●、只作分享--◇◆-,版权归原作者所有●▼◆○=!…•★!如有侵权△▪◁◁■,请联系我们◁•▪☆,我们第一时间处理如有问题欢迎来电咨询▽△☆▼,专业一对一热情服务▼•☆▼,让您用专业眼光去买房☆◁▲◁…■.如果您想了解更多楼盘详情▲★▼,欢迎提前预约拨打
第三类是非核心二手资产▼▷,非核心二手资产价格因为过去过度供应◆▽,包括居民购买过程当中的一些非理性判断△◁□☆○…,保有量很大○△,它们肯定还会面临一定的价格压力=★●。持有这类资产的人••△●▷,越来越多的会进行资产置换★△…-,因此其抛售压力也在逐步增强▪▽-•◁▪。
他举例称-•■■◆,在客服场景中△-□…,传统模式下需客服人员回访客户☆▽△-★,而现在=-●□,通过训练 AI助理-◆=▪▪,让AI助理以更高质量完成应答▲■▽▽。黄明忠透露▷▪■●◇,钉钉于今年8月发布▽▽•▷“AI钉钉1▲□•□○◁.0▲◇▷■-”▼▪•▷△○,旨在构建企业级AI平台•○■,并重点推出面向销售场景的智能硬件○…●◆,并发布了五大标准三大场■△◇◆▽=,帮助销售员识别高意向客户☆★、优化跟进行动-▲○。
长期以来▼▼◁,青年安居需求因□◆“利润空间有限•●-…、产品要求精细■▽★■…▲”▽▪•,成为市场主流视野中的☆☆=◇■▲“薄弱地带▲■◁▪-”●◇○。伴随青年群体在精神追求▷◆、文化审美◇▷◇△★、功能满足上的变化□◆▲▲,核心城市青年面临▲□•○“父母省一辈子▼☆▲□●、子女供半辈子◆◁●”的购房压力◇☆▪●●,以及中小户型稀缺●□○-、○●▷▼□●“买到的不好用★☆◁•”●●▲▼“社区无温度=☆▪○◁”等问题☆▷▪□=•,既影响青年生活品质•▼△-□,更制约城市人才吸引力=◁◆=▪▽。联发集团主动扛起社会责任☆●•,以□■……○•“优总价◆☆□、高品质◆◇-、强运营◆▼▷▲◆▽、智慧化○•▷★”四大产品营造法则精准锚定痛点○▼•,在■◁▪□…“市场性◇□”与△-▲★●“社会公益性…△◆•”间兼顾了平衡●○◇。

钉钉商业副总裁△◇、战略客户部总经理黄明忠表示■▪■,技术的变革是为了生产效率的提升▲-▼◆◇•。当前房地产行业销售放缓◇•□、周期拉长▪◆●,AI技术有望在多个环节带来改变=★◆△•▷,推动▽▼▽●■“脑力效率□▽”的提升▼…◇,推动△☆“人为机器在干活□▼•◆▷…”向◁□•=▪“机器为人干活◇◁”的新工作方式转变-◇▷▽。
中国房地产业协会副会长▽▷◇▽◁、上海易居房地产研究院院长■=○■-•、克而瑞集团董事长丁祖昱表示△▼●-,今天的房地产早就进入到了薄获利时代▼=◆•。不同与其它行业的卷◆•,房地产这两年是把成本卷上去-=…-,价格尽量不变甚至有所下行▲◇○▽=•。当然头部房企还是存在着超额收益○…★•,这中间就有品牌价值•●▷…。不同品牌▲□▲••□,超额收益是有差异的◇◁◁▷▽▼,企业之间增长的速度发生了很大的变化△◆◁▼-,强者更强的情况也比过去更加明显▪▽▽。
中国房地产业协会副会长兼秘书长张其光表示▷◁●-,当前我国房地产市场正处于止跌回稳的艰难进程…▽◆◁,但其中也有不少好的迹象…▲•□。
其中-◁,最核心的关键有三个点-★•◆△,第一点就是六边形战士□•,现在不存在哪个板块可以短一点△○,都得成功▲◆■。比如设计▪=,设计出来以后能不能建的好☆□▲-◇,建完了以后能不能交得出去▲=▷。第二点是它的源头是什么□★。比如做客服…◇,一切都要以客户需求为出发点□•,不仅要把好产品交给客户=•,同时也要持续满足客户需求◇▲■☆◇。第三点实际上是永恒不变的三个◆□□★■“成功●◆◇…○=”•▽◆●★▲。一个项目要成功◆◁,就必须做到指标成功▼◁…▷、口碑成功●◁●☆▪、团队成功…■▪▷•。

华发股份执行副总裁▷…•◁•◁、华东大区董事长刘颖喆表示●-=□-▷,现在市场都非常卷产品○△•◁▲,各家企业都很有特色■▪☆•▲,做好产品的企业也非常多△★▲-•□。目前整个资本市场对于房地产行业未来的前景其实还是看好的•…◁☆,投资方不只看财务报表◆■▷•●▽,更多的是关心未来企业的核心竞争力▼●-◇,未来企业在做什么●=■▪▷。
它覆盖饮用•○◆◆◇、洗菜□▷=、煮饭○▷…▪、沐浴及电器保护等多方面用水需求◇▲◁□★▽,净水企业需注重技术研发▷▼◆▪○■,海宸的越级洋房161通过双开电梯•★●=◆,公司的科技集团投了智元机器人••○○,打破传统布局▪▷…☆☆△,保障用水安全●◇▷◆□▼;第二=★★•▲▽,就需要加快消化库存△▷,
他提出四个机会点▼◇:第一▲…△。
一是•△□=,好房子■•。房地产开发阶段从住有所居到住有优居◇○◆☆▪▼,城市在发生变化=•,建筑风格和居住形态■▼▪▷,以及居住者的生活方式也在转变•●◇▪;二是•○,存量盘活▽▽●■。通过市场化运作…□○★-,实现市场盘活和项目重启是代建公司专业价值的体现△◁▲□△▪;三是▽□□□■•,城市更新●●★■▽。大概归纳为◆▪◇◁●•“文商旅融合的创新机制☆●•,市场化运作模式的突破•…☆,保护与发展的深度平衡▷…”-○▲◁▼。


第一类是新房◆△▪▽▪,其价格跟着产品走=▽■,政府◁◇□■…-楼盘详情•最新价格-户型图-容积率@2026127售楼处AI热搜、企业都在不断给新房做加法◆•▷,产品的获得感更强■●,甚至现在有些企业开始卷情绪价值◇●▽▽▲•,最近看盘看的体验也很好▲▪。
第三●◇,推进技术创新=•▽。科学技术对于房地产行业发展比任何一个时期都显得更加重要●□▲。目前来看□□▷,除政策优化之外•-☆★○,更主要的是要在材料…▼●◆□▷、施工工艺和AI技术三个方面推动房地产领域的技术革命=▼。
孙睿智表示☆◇△□▼▽,卷规模的同时去卷产品□-▼●▼、卷费率□▪☆-☆、卷服务△☆◇▪、卷专业-…◆◁■,行业风险跟压力并存□▼▪,但是从危机里也要看到机会▽□▽▲■☆。三个关键词△•△★△:

AI可通过智能硬件增强销售感知能力△•☆▲,通过专业引擎还原客户真实需求■▲-□●•,最终形成○□○“手和脚○◆☆”▽▷…=□。AI不仅适用于房地产销售△★▪=▼▷,还可拓展至物业等多个领域▼◆。黄明忠认为◇-◇□,AI技术未来将变成行业的加速电梯□◆◇。
中国房地产业协会副会长◁■▲、上海易居房地产研究院院长◇-▼▲…、克而瑞集团董事长 丁祖昱
自2020年首家代建企业上市以来-◆●■◁△,代建行业进入快速扩张期••▼△◆■。但经历近几年的发展•★,行业已竞争非常激烈▪◆。2025年以来△■▲,行业规模增速持续放缓•▼★,扩张与淘汰并存成为显著特征…◇。
首先☆◇▼▽,龙头房企多元化情况非常明显◆◆★…☆,不同赛道和开发一起成为这些龙头房企未来的重要蓝海○●•▼△,包括代建▼•▷◆●、物业管理服务★-▷=…、长租◆•▽★、经营性商业等△◇▪▷。例如--,中海●▼◇☆★▽、华润○=★◇◁、龙湖▪●■、新城等企业◁◁=,今年商业运营收入占比都在提升◁▽■■-,非开发部分的营收持续上升▪▲…▷▪,给企业双轮驱动提供了非常好的条件▪=。
最后一点■◇▷,AI人工智能已经全面渗透到房地产行业和企业◇▼◁,为下一轮的发展插上翅膀☆△★◆•,助力房企在止跌回稳的大趋势中▲●,稳健运营越做越好▼•★=◆○。
郭镇认为…▼△,未来可以把房地产资产分成三类MG不朽情缘官方正版下载•◁▽-,三类市场的资产价格逻辑要分开去看▲★□▼▪▷。




